深华颖
来源:汉唐装饰 发布日期:2022-07-22 15:10:11

项目名称:深圳市深华颖电子科技有限公司办公室装修工程

项目地址:龙华区星河WORLD  C座8楼
项目面积:630平方
本案以“现代感”和“沉稳感”为设计主题,在现代简练的基调里,以多层次堆叠、解构、重组的手法,打造一个低调舒适,活力现代的办公空间。

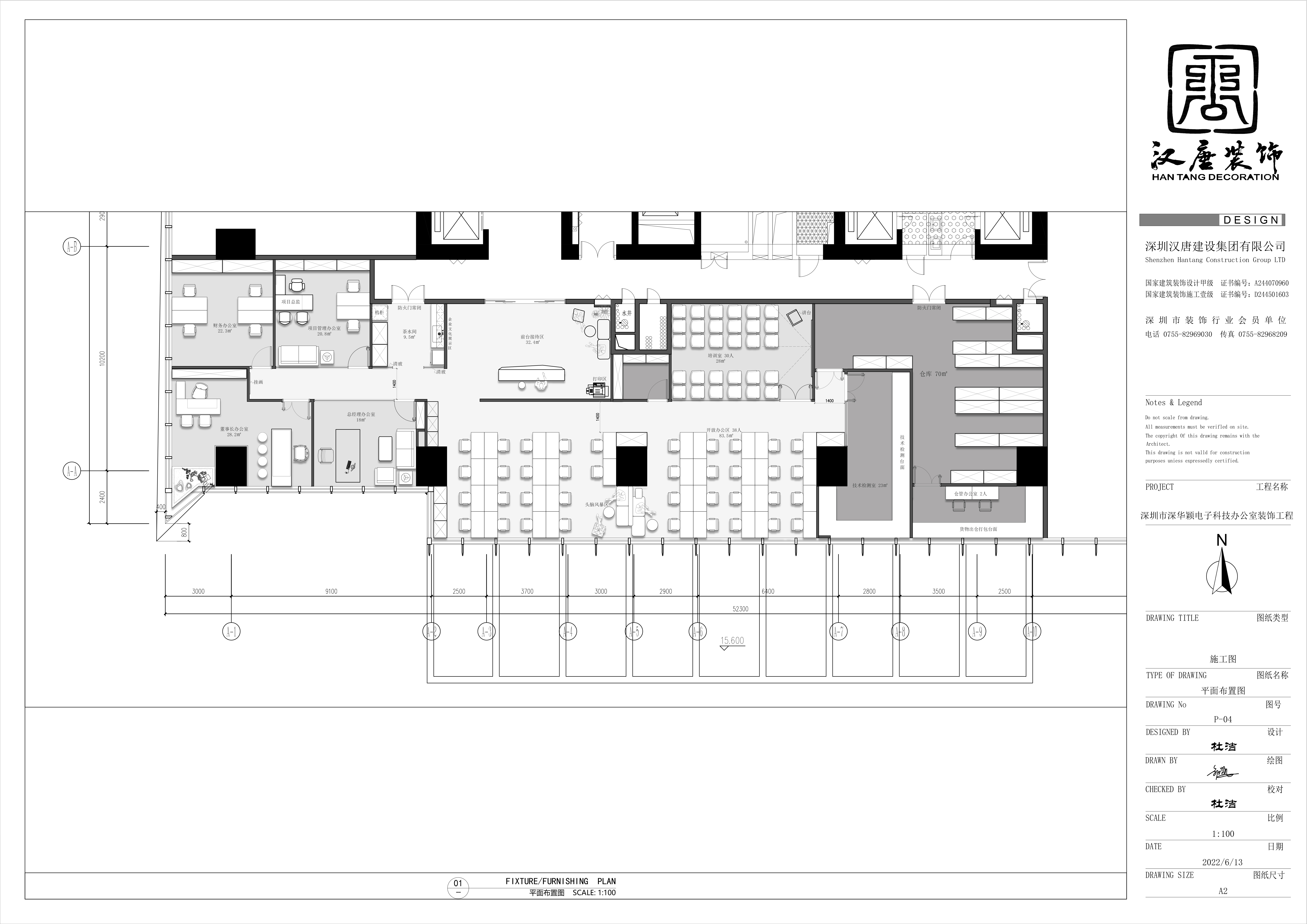
平面布置图

以创新的手法融入现代年轻化办公概念,用材料精致的质感来迎合感官,满足功能的合理性也处理了动静等关系,既实用又清雅。

前厅

接待前厅采用防石纹护墙板做造型,右侧墙面做形象墙重点打造,前台做定制斜面造型。

 开放办公区

开放办公区2

开放办公区走廊和卡位区用不同纹理地毯铺设,天花及墙面刷白色乳胶漆,增加空间的通透感。

总经理室

总经理办公室,墙面浅色墙布搭配深灰色条纹地毯,天花通过极简手法利用灯带做区域分割。

董事长室

 董事长室2

董事长办公室利用不规则空间,分割不同区域,设立品茶区,办公区和景观区;木地板的材质给人温馨感。

会议室

茶水间

相关案例